Ga naar de inhoud
Welkom bij Uniconstruct
Geef uw postcode in om geholpen te worden door de partner van het Uniconstruct-netwerk in uw regio.

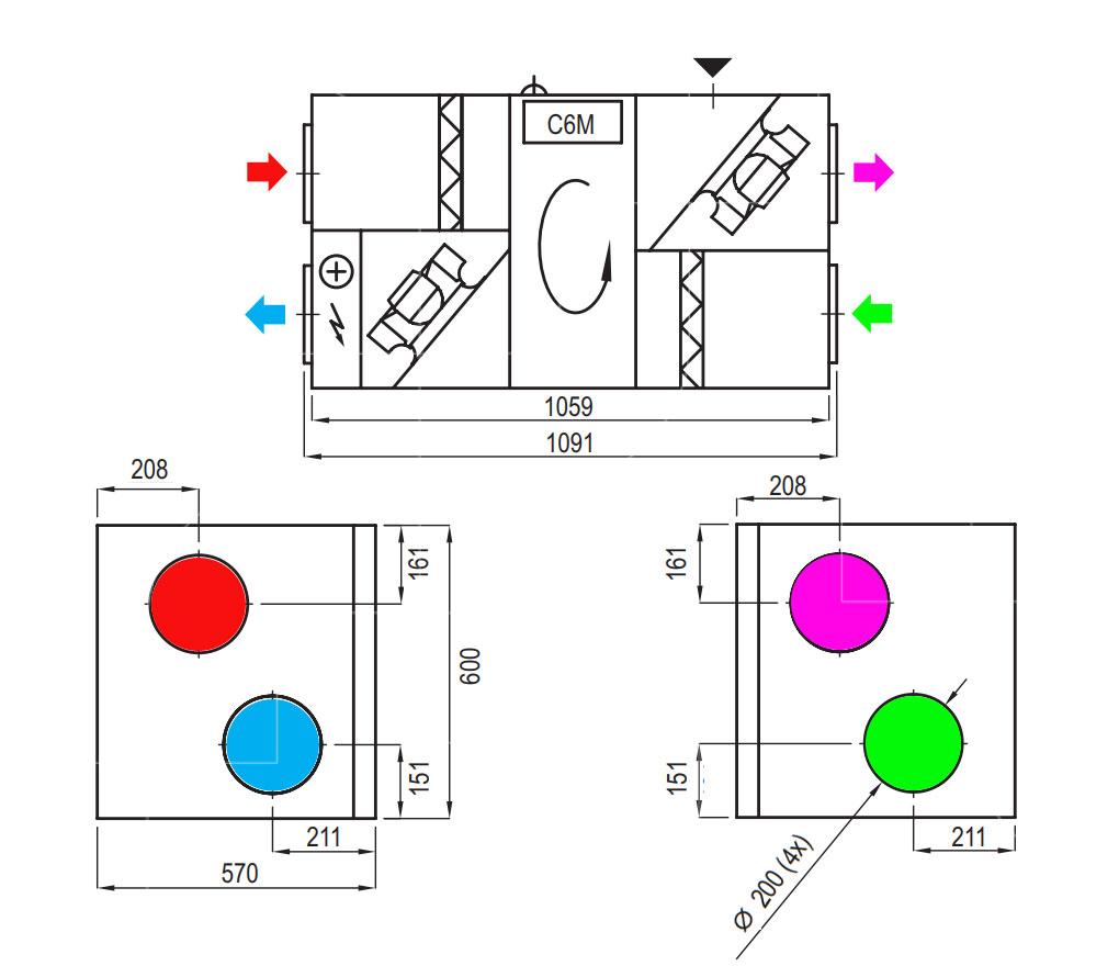
Domekt R 600 H

Domekt R 600 H

Omschrijving

Compacte ventilatie-unit met zijaansluiting in industriële bouwkwaliteit.

Uitgerust met een professionele C6M sturing en hoge kwaliteit sensoren en motoren.

Voordelen

  • Zeer compact wandtoestel
  • Warmtewiel waardoor hoge latente warmteterugwinning
  • Zomerbypass en CAV/VAV-modus
  • Geen condensafvoer omwille van volledige vochtrecuperatie

Kenmerken

  • Debiet: 610 m³/h bij 200 Pa
  • Staal gelakte omkasting in RAL 9003
  • Akoestisch en thermische isolatie van 50 mm
  • C6M controller (modbus, sensoren,...)
  • App-connectie over internet of webserver over LAN
  • M5 filters standaard
  • Geïntegreerde elektrische weerstand

Opties

  • C6.1 of C6.2 touchdisplay bediening
  • Externe DX- of warmwaterbatterij
  • Vloerframe

Opmerking

De H (horizontale) toestellen zijn bedoeld om op de grond te plaatsen. Er is dus standaard geen ophangbeugel voorzien.

Lees meer

Offcanvas